マンション
ペイサージュ崇元寺 603号
モノレール「牧志駅」より徒歩6分♪利便性の高いマンション出ました!建物1階部分にはコザ信用金庫安里支店があります☺室内キッチンコンロはお手入れしやすいIHコンロです☆収納スペース充実!
4000万円
所在地 | 那覇市安里1丁目8-9 |
---|---|
交通 | 牧志駅 6分 |
価格 | 4000万円 |
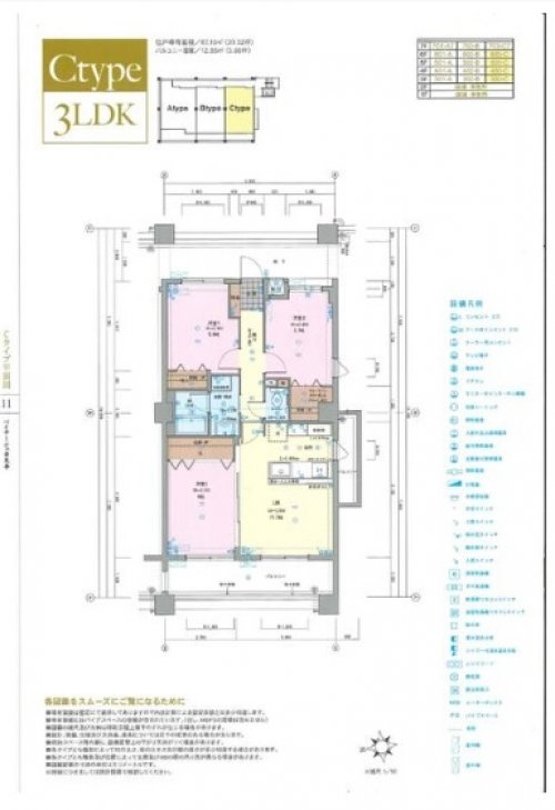
間取り | 3LDK |
専有面積 | 67.19m² 20.32坪 |
築年月 | 平成29年10月 |
建物構造 | 鉄筋コンクリート |
建物階/所在階 | 7階建 /6 階部分 |
総戸数 | 17戸 |
バルコニー面積 | 12.85m² |
ルーフバルコニー面積 | 0 |
施主 | |
土地権利 | 定期賃借 |
用途地域 | 商業 |
環境 | 商業用地 |
現況 | 所有者居住中 |
管理費(月額) | 4,810円 |
修繕積立金(月額) | 6,220円 |
駐車場 | 敷地内 1 台 7,000円 |
管理会社 | 琉信ハウジング |
引き渡し | 相談 |
取引形態 | 仲介 |
設備 | 都市ガス/バス/トイレ別/インターフォン/TVホン/オートロック/洗濯機置場 |
・借地期間:2072年9月6日まで(残存期間:47年) ・地代:10,500円/月額
・取り壊し積立金:1,060円/月額
・塵芥処理費:1,100円/月額
|