マンション
ワイズエステムコートライカム
この眺望!!東海岸を見渡す最高な見晴らしです♪県内でも高い人気を誇るライカムエリア。利便性と将来性を兼ね備えたこの立地は、居住用としても資産としても魅力です☆眺望・採光・通風ともに良好♪敷地内に平面駐車場完備!「住」んで良し「貸」して良しのワイズエステムコートライカム。一見の価値ありです!5月中旬より案内開始となります(^O^)
4780万円
| 所在地 | 沖縄県北中城村字ライカム480 |
|---|---|
| 交通 | イオンモール沖縄ライカム 9分 |
| 価格 | 4780万円 |
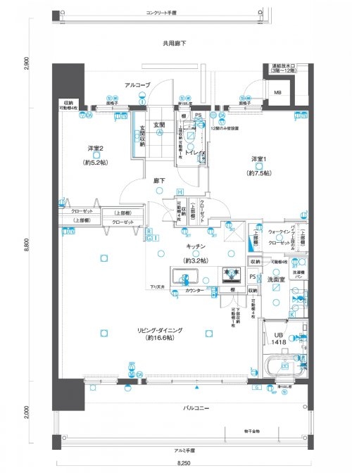
| 間取り |
2LDK
洋7.5・洋5.2・LDK16.6 |
| 専有面積 | 73.02m² 22.09坪 |
| 築年月 | 平成29年11月 |
| 建物構造 | 鉄筋コンクリート |
| 建物階/所在階 | 13階建 /9 階部分 |
| 総戸数 | 68戸 |
| バルコニー面積 | 16.50m² |
| ルーフバルコニー面積 | 0 |
| 施主 | 日商エステム・エールクリエイト |
| 土地権利 | 所有権 |
| 用途地域 | 第1種住居 |
| 環境 | 住宅用地 |
| 現況 | 空家 |
| 管理費(月額) | 9,230円 |
| 修繕積立金(月額) | 7,670円 |
| 駐車場 | 敷地内 1 台 3,500円 |
| 管理会社 | (株)大京アステージ |
| 引き渡し | 相談 |
| 取引形態 | 専任 |
| 設備 | プロパンガス/BS/バス/トイレ別/インターフォン/TVホン/オートロック/洗濯機置場/インターネット/浴室乾燥機/宅配ロッカー /各収納/システムキッチン |

