賃貸
南風原町宮平貸事務所兼倉庫
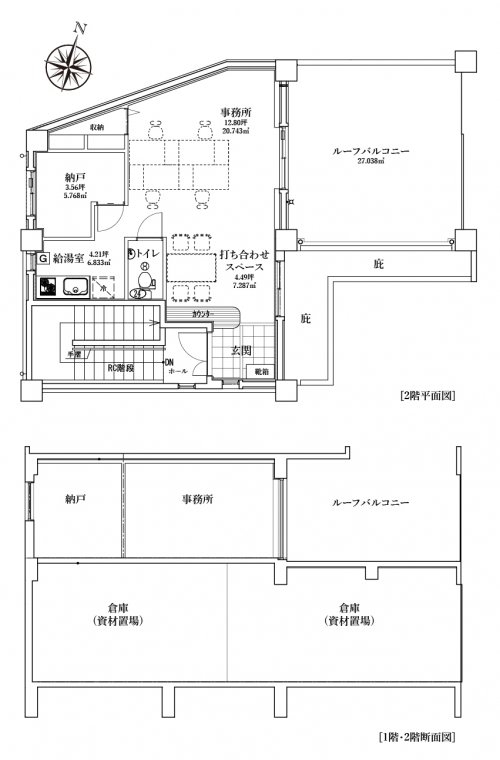
【賃料改定しました!】完成しました!内覧可能です★ 倉庫付の2階建て、新築貸事務所!約23坪の広々とした倉庫、シャッター付きで車での出入りも可!トイレ2か所有り!敷地内駐車場3台可!南風原北ICや国道へのアクセス良好な立地です(^O^)イオン南風原ショッピングセンターまで車で約5分♪
37万円
| 所在地 | 南風原町宮平564 |
|---|---|
| 交通 | 「育成園前」バス停より 3分 |
| 賃料 | 37万円 |
| 間取り |
ワンフロア
1階倉庫、2階事務所 |
| 敷金/礼金 | 2ヵ月/1ヵ月 |
| 物件種別 | 事務所 |
| 建物構造 | 鉄筋コンクリート |
| 建物階/所在階 | 2階建 |
| 築年月 | 令和7年3月 |
| 共益費 | |
| 管理費 | |
| 駐車場 | 敷地内 3 台 無料(並列) |
| 条件等 |
|
| 契約期間 | 2年 |
| 保険 |
火災保険
|
| 現況 | 空室 |
| 引き渡し | 相談 |
| 取引形態 | 専任 |
| 設備 | 給湯/温水洗浄便座/トイレ2か所 |
















