賃貸
ル・サンク那覇開南
のうれんプラザ・再開発エリア!分譲マンション賃貸11階、東南の角部屋!眺望、日当たり良好!4LDK、対面カウンターキッチン、食器洗い乾燥機、浴室乾燥機、温水便座、高速大容量のネット対応!ハイルーフ対応の機械式駐車場!
27.5万円
| 所在地 | 沖縄県那覇市樋川2-10-14 |
|---|---|
| 交通 | 開南バス停 7分 |
| 賃料 | 27.5万円 |
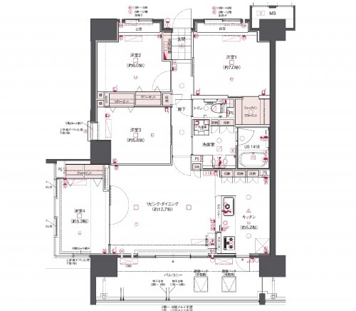
| 間取り |
その他
4LDK(洋7.0・洋6.0・洋5.8・洋5.3・LDK17.9) |
| 敷金/礼金 | 2ヵ月/2ヵ月 |
| 物件種別 | マンション |
| 建物構造 | 鉄筋コンクリート |
| 建物階/所在階 | 19階建 /11 階部分 |
| 築年月 | 2020年3月 |
| 共益費 | |
| 管理費 | |
| 駐車場 | 敷地内 1 台 |
| 条件等 |
即入居可
|
| 契約期間 | 3年 |
| 保険 |
火災保険
|
| 現況 | 空家 |
| 引き渡し | 即時 |
| 取引形態 | 代理 |
| 設備 | 都市ガス/BS/ユニットバス/バス/トイレ別/インターフォン/オートロック/シャンプードレッサー/インターネット/浴室乾燥機 |


















