賃貸
ワイズエステムコート新都心上之屋② 1302
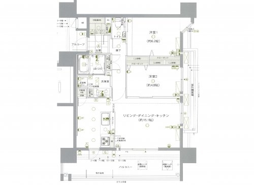
成約済み「ワイズエステムコート新都心上之屋Ⅱ」★那覇市上之屋1丁目に築浅分譲マンション賃貸のご紹介です!★15階建ての13階、角部屋の2LDKで、オーシャンビューです!★敷地内に機械式駐車場2台確保!★玄関にはシューズクローゼット、各居室にクローゼット!★対面カウンターキッチンで、家事もより便利に、快適に!
19.5万円
| 所在地 | 沖縄県那覇市上之屋1-1-26 |
|---|---|
| 交通 | 「上之屋」 7分 |
| 賃料 | 19.5万円 |
| 間取り | 2LDK |
| 敷金/礼金 | 1ヵ月/1ヵ月 |
| 物件種別 | マンション |
| 建物構造 | 鉄筋コンクリート |
| 建物階/所在階 | 15階建 /13 階部分 |
| 築年月 | 令和7年1月 |
| 共益費 | 5,000円 |
| 管理費 | |
| 駐車場 | 敷地内 2 台 |
| 条件等 |
ペット相談可
|
| 契約期間 | 3年 |
| 保険 |
火災保険
|
| 現況 | 賃貸中 |
| 引き渡し | 指定有 令和8年2月末入居可 |
| 取引形態 | 専任 |
| 設備 | 都市ガス/BS/バス/トイレ別/インターフォン/オートロック/シャンプードレッサー/洗濯機置場/インターネット/浴室乾燥機/宅配ロッカー |


















