戸建
八重瀬町後原戸建
建物面積約28坪のRC造平屋戸建出ました!平屋のため階段の上り下りのストレス無し★太陽光パネル付きのオール電化住宅です!軟水器、EVコンセント、さらにカーポート付きで車の乗り降りで濡れる心配なし\(^o^)/
5400万円
| 所在地 | 八重瀬町字後原1134-12 |
|---|---|
| 交通 | 「後原入口」バス停より徒歩 3分 |
| 価格 | 5400万円 |
| 土地面積 | 192.76m² 58.31坪 |
| 建物延べ面積 | 92.81m² 28.08坪 |
| 築年月 | 平成27年6月 |
| 建物構造 | 鉄筋コンクリート |
| 階数 | 1階建 1階建 |
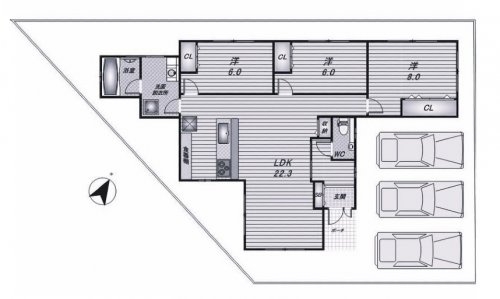
| 間取り |
3LDK
洋8.0・洋6.0・洋6.0・LDK22.3 |
| 駐車場 | 敷地内 3 台 |
| 土地権利 | 所有権 |
| 地目 | 宅地 |
| 都市計画 | 都市計画区域外 |
| 用途地域 | 未指定 |
| 建ぺい率/容積率 | / |
| 地勢 | 平坦 |
| 環境 | 住宅用地 |
| 現況 | 所有者居住中 |
| 接道状況 | |
| 接道方向 | |
| 接道幅員 | |
| 間口 | |
| 引き渡し | 相談 |
| 取引形態 | 仲介 |
| 設備 | バス/トイレ別/インターフォン/洗濯機置場/浴室乾燥機 /オール電化/太陽光発電/カウンターキッチン/システムキッチン/IHコンロ |




