戸建
エンズマリーナイン座間味コンドミニアム
座間味村の宿泊施設出ました!青い海、空のある環境でホテル経営しませんか?宿泊施設として経営引継ぎも可能ですが、会社の保養所などもいかかでしょうか?座間味港から徒歩5分です!2016年に外壁、内装フルリノベーション済です(*^▽^*)
14880万円
| 所在地 | 島尻郡座間味村座間味435 |
|---|---|
| 交通 | 座間味港より徒歩 5分 |
| 価格 | 14880万円 |
| 土地面積 | 320.61m² 96.98坪 |
| 建物延べ面積 | 0 |
| 築年月 | 平成8年5月 |
| 建物構造 | 鉄筋コンクリート |
| 階数 | 3階建 3階建 |
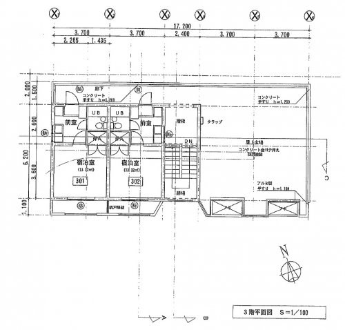
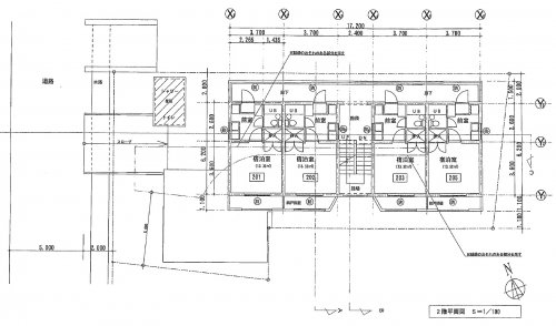
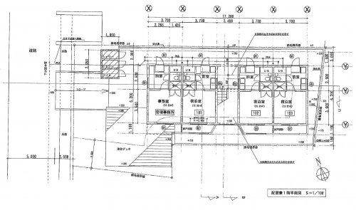
| 間取り |
1ルーム
10室(客室7室、事務所1室、スタッフルーム2室) |
| 駐車場 | 敷地内 0 |
| 土地権利 | 所有権 |
| 地目 | |
| 都市計画 | 未線引 |
| 用途地域 | 無指定 |
| 建ぺい率/容積率 | / |
| 地勢 | 平坦 |
| 環境 | |
| 現況 | |
| 接道状況 | 角地 |
| 接道方向 | |
| 接道幅員 | |
| 間口 | |
| 引き渡し | 相談 |
| 取引形態 | 仲介 |
| 設備 | 電気/フルリノベーション済/外壁塗装済 |








